Nhà thờ Våler Kirke ở làng Våler, Na Uy được ra đời nhằm thay thế cho nhà thờ cũ của thế kỷ 19 bị thiêu rụi do một vụ hỏa hoạn xảy ra vào năm 2009. Nhà thờ mới này được thiết kế với mái nhà bằng gỗ hình chóp có thể thu ánh sáng tự nhiên vào khu cầu nguyện ở bên trong, tạo nên một không gian trang trọng và ấm cúng.

Thông tin công trình:
- Thiết kế: Espen Surnevik
- Kỹ sư kết cấu hợp tác: Tiến sĩ Techn. Kristoffer Apeland
- Nghệ sĩ hợp tác: Espen Dietrichson
Nhà thờ Våler Kirke là thiết kế của kiến trúc sư Espen Surnevik, có trụ sở tại Oslo, đã giành chiến thắng trong một cuộc thi quốc tế bởi nó thể hiện sự đồng cảm với chiếu thư của giáo hoàng bằng cách tôn vinh ký ức của nhà thờ trước kia.
Surnevik giải thích thêm rằng vị trí, hình thức và nguyên vật liệu xây dựng của nhà thờ mới này cũng giống như một câu chuyện kể về nhà thờ.

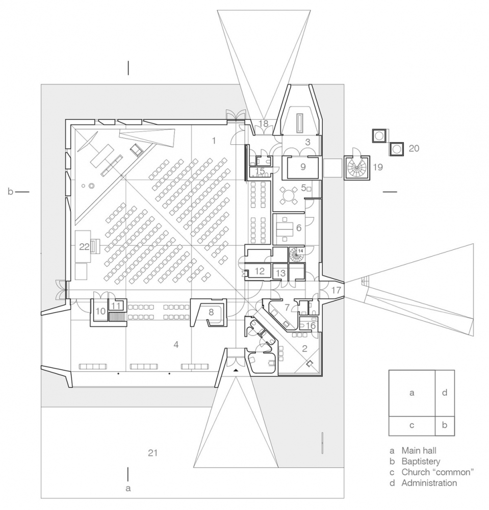
Våler Kirke được đặt trên trục quy trình hiện có. Lối vào chính của nhà thờ mới thẳng hàng với lối vào của nhà thờ cũ, được cố định bởi một bức tường thấp có đường viền ngăn cách nó với khu nghĩa địa.
Sơ đồ mặt bằng của công trình được tổ chức theo bốn cung phần tư, với sảnh chính và khu rửa tội được bao bọc bởi các khu vực chung và khu hành chính.

Sự sắp xếp này, cùng với việc bố trí các hốc ở mặt tiền 4 phía Đông, Tây, Nam, Bắc đã gợi nhớ trực tiếp đến hình dạng hình chữ thập của nhà thờ cũ.
Hai không gian chính này được xác định bên ngoài bởi mái nhà hình chóp, có chiều cao 12m và 24m. Các khối hình góc cạnh nằm trên một cột bê tông hình vuông tạo thành cơ sở nền tảng cho nhà thờ.

Cả hai cấu trúc mái đều có các khe hở cho phép ánh sáng ban ngày chiếu vào không gian cầu nguyện và cho những người đến đây sự kết nối thị giác trực tiếp lên bầu trời.
Trong quá trình thiết kế, Surnevik đã hợp tác với nghệ sĩ Espen Dietrichson về cách thể hiện chủ đề phục sinh thông qua các khía cạnh của kiến trúc nhà thờ.

“Yếu tố quan trọng nhất là công trình có nhiều ánh sáng ban ngày chiếu vào không gian bên trong từ các khe hở khác nhau” KTS nhấn mạnh. “Điều này tượng trưng cho niềm hy vọng, ánh sáng đó bất chấp bóng tối vẫn sáng rực rỡ sau sự mất mát bi thương của nhà thờ cũ.”
Kết quả của sự kết hợp là cấu hình của 28 cửa sổ xuyên qua góc Đông Bắc của sảnh chính và cho phép ánh sáng ban ngày bổ sung chiếu vào ban thờ.

Các khe hở xuất hiện dưới dạng các khe dọc đơn giản khi nhìn từ bên ngoài, trong khi bên trong Dietrichson tạo ra các đường cắt góc cạnh, các bề mặt được tráng gương để phản chiếu ánh sáng tạo cảm giác chúng giống như mặt trời.
Tòa nhà được ốp bên ngoài bằng ván gỗ thông, một loại gỗ thường được sử dụng trong xây dựng ở địa phương. Các mặt tiền tự nhiên sẽ dần tối đi. Theo dự tính chúng sẽ được thay thế sau mỗi 50 năm để nhà thờ “sống lại như mới đối với mọi thế hệ sau này”.

Các không gian bên trong được bọc bằng ván gỗ ép bạch dương màu nhạt giúp nâng cao cảm giác về không gian và sự nhẹ nhàng nhờ trần nhà cao vút.
Surnevik và Dietrichson đã phối hợp nhịp nhàng, lao động miệt mài để tạo ra một tác phẩm nghệ thuật mang ý nghĩa vô cùng to lớn đối với người dân nơi đây.
Xem thêm ảnh:






























Biên dịch | Đàm Thủy (Nguồn: Dezeen)
XEM THÊM:
- 9 nhà thờ Gothic nổi tiếng nhất trên thế giới
- Nhà thờ Northern Lights – điểm ngắm cực quang lý tưởng ở Na Uy
- Nhà thờ Autobahn Siegerland: Khi tôn giáo và kiến trúc tạo nên phép màu.




































