Bosjes Chapel là một dự án nhà nguyện ấn tượng, bao quanh bởi vườn nho và đồi núi cùng địa hình xavan nổi tiếng tại châu Phi. Công trình được thiết kế bởi Coetzee Steyn – Một KTS gốc Nam Phi đang hoạt động kiến trúc tại London, Vương quốc Anh.
Thông tin dự án:
- Thể loại công trình: Nhà nguyện, giáo đường
- Đơn vị thiết kế: Steyn Studio
- Năm dự án: 2016
- Địa điểm: Nam Phi
- Diện tích: 430 m²
- KTS chủ trì dự án: TV3 Architects (Nam Phi)
- Thiết kế nội thất: Liam Mooney Studio
- Nhà thầu kết cấu: Henry Fagan & Partners
- Thiết kế điện: Solution Station
- Thiết kế cảnh quan: CNdV Landscape Architects
- Nhiếp ảnh: Adam Letch
“Thiết kế nhà nguyện Bosjes của chúng tôi được lấy cảm hứng trực tiếp từ vẻ đẹp tối giản của các Giáo đường Moravian – trên những trang trại Cape Dutch ở thế kỷ 19”
Concept mái của công trình Bosjes ChapelThuyết minh của KTS
Coetzee Steyn sinh ra và lớn lên ở Nam Phi nên anh hiểu rõ từng góc cạnh, chi tiết về thiên nhiên, địa hình tại đây. Công trình được Steyn và cộng sự lên ý tưởng mô phỏng theo hình hài và đường nét uốn lượn tựa những dãy núi hùng vĩ bao quanh.
Nói về ý tưởng này, Steyn Studio cho rằng đây là sự tôn vinh dành cho kiến trúc Cape Dutch – kiểu kiến trúc Afrikaner điển hình tại các vùng phía Nam của châu Phi, đặc biệt là khu vực nông thôn Western Cape.

Cảnh quan thiên nhiên hùng vĩ đặc trưng của Nam PhiTrong bối cảnh lịch sử, Nam Phi là nơi gắn liền với những nét văn hóa, lịch sử cùng bản sắc độc đáo. Kiến trúc Cape Dutch phát triển ở Nam Phi trong thời kì đen tối nhất: trao đổi nô lệ.
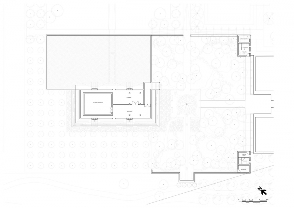
Nền kiến trúc này được hình thành trong quá trình cư dân phương Tây đến đây để bắt giữ nô lệ, chiếm đoạt tài sản và đồng hóa cư dân tại đây. Khi nhắc đến Cape Dutch, người ta nhớ ngay đến những công trình văn hóa – tôn giáo như giáo đường, nhà nguyện… hay bình dân hơn là các hầm rượu, nhà kho lưu trữ lương thực.
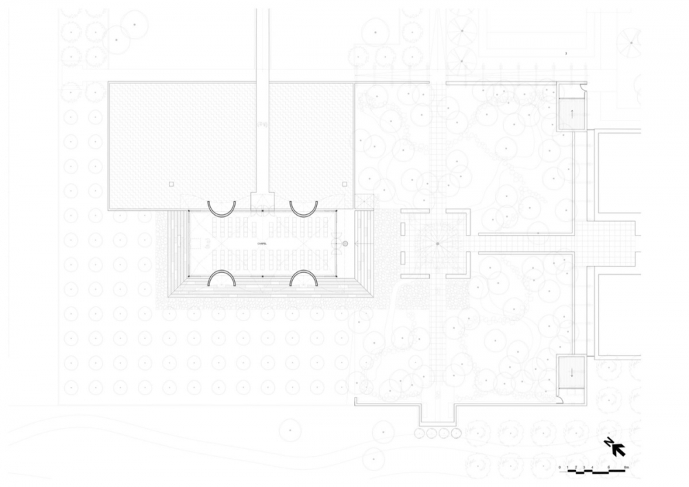
Một giáo đường theo kiểu Cape Dutch đặc trưng được Coetzee Steyn ghi lạiĐược xây dựng từ một bộ vỏ bê tông chịu lực, công trình mang nét nổi bật nhất về thị giác ở kết cấu mái. Mái nhà là tổ hợp các module đồ thị hình sin đối xứng, lắp ghép tạo nên những đường cong đều trong không gian.
Bổ sung vào vẻ đẹp thị giác cho hệ mái uốn lượn là các mảng kính lớn bao quanh mặt tiền. Chúng được sắp xếp đối xứng theo bố cục thánh giá ở trung tâm – nơi “đợt sóng của ngọn núi dâng lên cao nhất” (ám chỉ điểm cao nhất của mái nằm ở giữa căn nhà nguyện)


Lấy cảm hứng thi ca từ Thi Thiên 36 : 7, hình thức trắng mịn của hệ mái được hình thành như “một cấu trúc nhẹ và năng động” (theo lời Steyn Studio), khiến nó có được dáng vẻ như đang lơ lửng trong thung lũng.
Người đi cầu nguyện tiếp cận sảnh chính của Bosjes Chapel bằng một lối đi nhỏ dẫn thẳng vào giáo đường. Khi bước vào, họ sẽ đi qua một hồ nước nhỏ trong vắt chia làm hai, phản chiếu lại kiến trúc của tòa nhà, giống với hình ảnh con người và bản thể của mình trong gương.


Nhà nguyện nhìn từ xa giống như một tác phẩm điêu khắc đối xứng, chỉn chu. Phong cách kiến trúc là sự giao thoa của thời gian, khi xây dựng từ kiến trúc nền Cape Dutch cổ kính, đồng thời pha vào đó những nét chấm phá hiện đại đến từ hệ thống mái cong cùng vật liệu cao cấp.
Đối với cảnh quan xung quanh, các KTS cung cấp cho giáo đường một vườn nho, vườn lựu bao quanh, kết hợp với hồ nước tạo thành một ốc đảo xanh tươi quanh năm.


Bên trong nhà nguyện là một không gian rộng và mở trên mặt bằng hình chữ nhật đơn giản. Sàn gạch terazzo với độ bóng cao phản chiếu ánh sáng tự nhiên và ánh sáng đến từ đèn trần, mang lại cảm xúc tích cực cho cho con người trong không gian tôn giáo.



Bảng màu “khiêm tốn” đến từ vật liệu nội – ngoại thất tạo nên tấm nền trung tính, làm nổi bật khung cảnh ấn tượng của cảnh quan xung quanh Bosjes Chapel: cây xanh, hồ nước và những ngọn núi phía xa.
Điều này cho thấy, đức tin về ngôi nhà thiên nhiên do Đức Chúa Trời ban tặng là một vẻ đẹp trường tồn nếu xếp cạnh những công trình do con người tạo nên.

Xem thêm ảnh:

























Biên dịch | Duc Anh (Archdaily)
XEM THÊM:
- Ellipsicoon – Đường cong mềm mại trong rừng nhiệt đới
- Ma Yansong: Bậc thầy của những đường cong
- Oscar Niemeyer – Huyền thoại của những đường cong




































