Đi ngược lại những bất lợi về vị trí địa lý của một không gian sống nằm trong ngõ nhỏ, thiếu ánh sáng và sự thông thoáng, Hải Dương house được xây lên với đầy ắp màu xanh, tiện nghi và sự ấm cúng.

Thông tin công trình:
- Tên công trình: Hải Dương house
- Địa điểm: Thành phố Hải Dương
- Hoàn thiện: 2020
- Diện tích xây dựng: 48m2
- Đơn vị thiết kế: V+ studio
- KTS chủ trì: Lê Quang Vinh
- Ảnh: Quang Minh

Thuyết minh của KTS:
Hải Dương house là ngôi nhà nhỏ nằm trong ngõ của 1 con phố ở thành phố Hải Dương, trên diện tích khu đất 48m2 dạng hình thang nằm trong cùng của ngõ. Vị trí này gặp nhiều bất lợi về ánh sáng cũng như sự thông thoáng nhất định. Yêu cầu của gia chủ là xây dựng một ngôi nhà cho cặp vợ chồng trẻ và 2 con nhỏ.

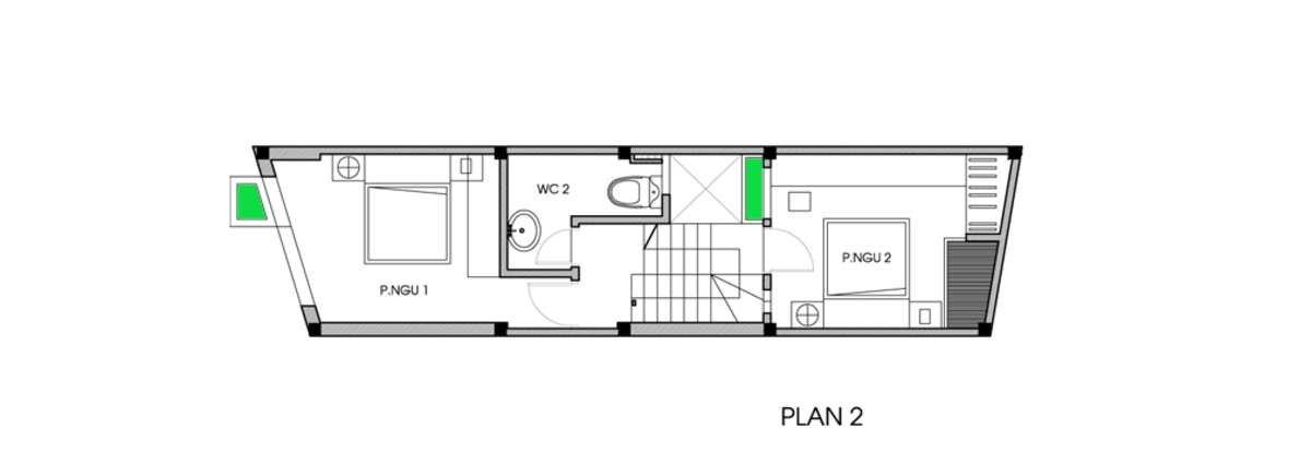
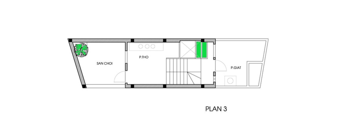
Hải Dương house được bố trí theo yêu cầu của chủ nhà về không gian sử dụng: tầng 1 có 1 khoảng sân nhỏ trồng cây, khu để xe, tiếp đến là phòng khách, sau đó là không gian chuyển tiếp và cuối là bếp và vệ sinh, trên tầng 2 gồm 2 phòng ngủ và 1 nhà vệ sinh chung, tầng 3 là phòng thờ, sân chơi và sân phơi.



Khi được đặt vấn đề thiết kế 1 ngôi nhà có diện tích nhỏ với kinh phí khiêm tốn, chúng tôi cũng suy nghĩ nhiều phương án và cuối cùng chúng tôi lựa chọn phương án mặt bằng thực dụng nhất, tuy không mới nhưng đáp ứng triệt để các nhu cầu sử dụng của gia chủ.



Điểm nhấn chính là 2 giếng trời giữa và sau nhà. Giếng trời giữa nhà được trồng 1 cây khế mà anh chủ nhà rất thích, trên đó có treo lồng chim; giếng trời thứ 2 ở cuối nhà như khoảng không cứu cánh cho phòng ngủ tạo không khí đối lưu cho không gian bếp. Bên trên có 1 lớp lam thoáng cho phòng ngủ có thể ngồi chơi nhưng ánh sáng và gió vẫn lọt qua được

Vật liệu chính sử dụng trong ngôi nhà là những vật liệu mộc mạc, gần gũi với thiên nhiên như gạch trần không trát, bê tông mài, gạch bông và gạch hoa gió.


Mặt tiền ngôi nhà sử dụng gạch bánh ú được xếp lộn xộn có chủ đích xen cài cây xanh tạo điểm nhấn cho ngôi nhà.

Xem thêm hình ảnh công trình:
















































XEM THÊM:
- Giải pháp tận dụng không gian để lưu trữ đồ trong nhà nhỏ
- Ngõ hẹp, nhà nhỏ, thiết kế khéo? | NBD Architects
- 9 cách tuyệt vời để sử dụng ngôi nhà nhỏ




































