Văn phòng kiến trúc Archimatika đã sử dụng màu sắc như một công cụ để “vực dậy” cảm xúc cho một khu công nghiệp cũ, thúc đẩy sự phát triển và sức sống của nó trong một khu phố lịch sử thuộc thủ đô Kiev, Ukraine.

Thông tin công trình:
- Kiến trúc sư: archimatika
- Diện tích: 512200 m²
- Địa chỉ: số 4 đường Reheneratorna St, Kiev, Ukraine
- Năm hoàn thành: 2019
- Ảnh: Andrey Avdeenko, Alexander Angelovskiy
- Nhà sản xuất: AutoDesk, GRAPHISOFT, VELUX Commercial, Baumit, Caparol, Isover, REHAU, Aeroc, Arcelor Mittal, Eurovent, Kreisel
Thuyết minh công trình

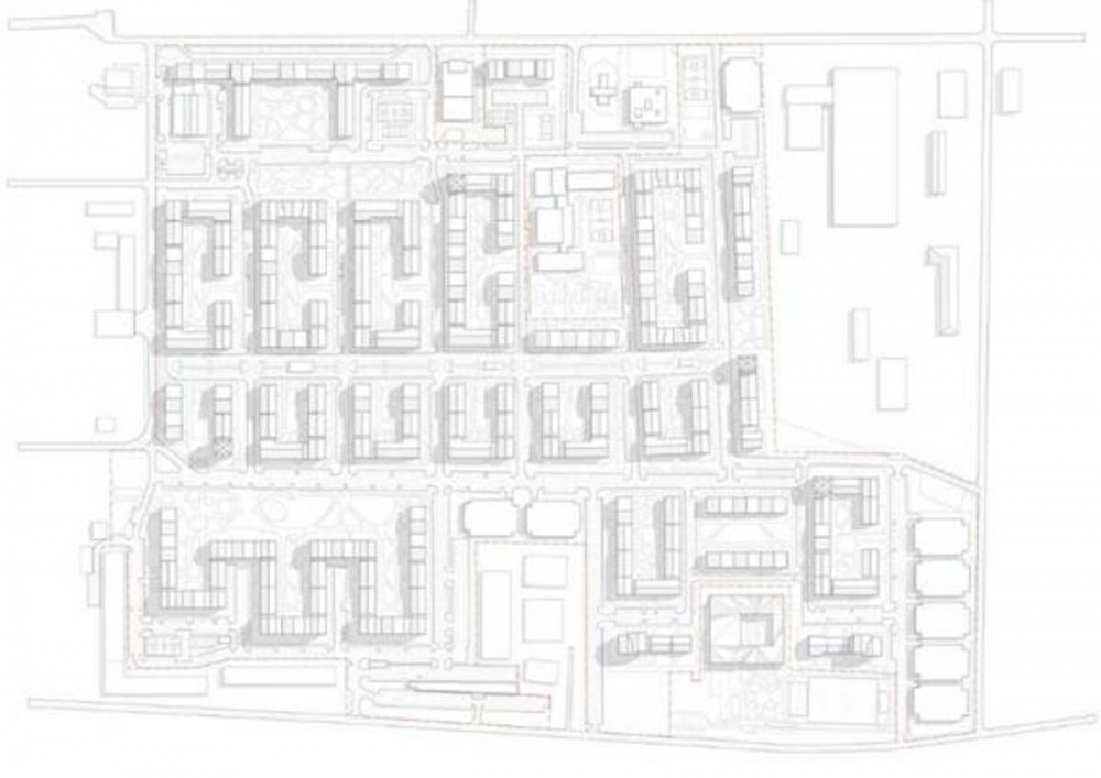
Chuyển đổi một khu công nghiệp cũ thành một khu dân cư không bao giờ là việc dễ dàng. Tuy nhiên, một bối cảnh đô thị nghiêm ngặt nhưng lại mang sắc màu tươi vui, độc đáo mang tên Comfort Town đã được tìm thấy ngay giữa lòng thủ đô Kiev, tạo nền tảng cho cuộc “thay áo” mới khác cho những khu dân cư thuộc Ukraine.

Là khu dân cư phức hợp đầu tiên của thành phố, Comfort Town được xây dựng dựa trên nguyên tắc phát triển khối mô-đun, chia thành 2 loại: đường phố (cho phép xe cơ giới lưu thông) và sân trong (nằm bên trong khối và kết hợp sân chơi trẻ em, ngõ ngách cùng các băng ghế dài).

Các phương tiện cơ giới không được phép di chuyển vào các sân trong này, ngoại trừ các xe dịch vụ khẩn cấp sẽ được sử dụng ở lối đi rộng xung quanh được lát bằng cỏ Trong điều kiện kinh phí hạn hẹp, Archimatika đã kiến tạo nên một Comfort Town mới mẻ, thẩm mỹ và đầy đủ công năng trên đống tro tàn của khu công nghiệp cũ theo 2 tiêu chí: cư dân phải được hạnh phúc và chi phí phải được kiểm soát.

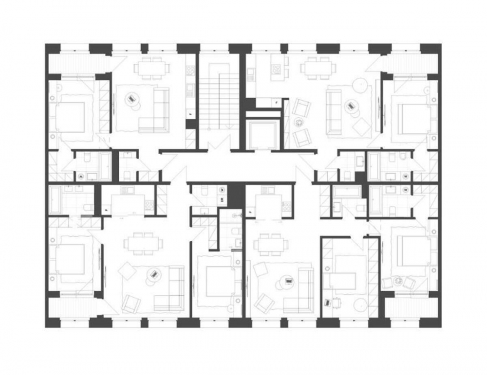
Các KTS đã tạo ra các mặt cắt có dạng hình học đơn giản và làm mặt tiền phẳng, do đó thu hẹp ban công và các yếu tố trang trí rườm rà.
Trọng tâm hình thành Comfort Town tập trung vào 3 kỹ xảo chính:
- Hình bóng – chiều cao và chiều hướng khác nhau từ các mái dốc kép của các toà nhà lần lượt tạo ra các hiệu ứng chiếu rọi thú vị từ ánh sáng và sắc màu;
- Cửa sổ – đây là dự án nhà ở đầu tiên ở Kiev sử dụng hệ thống ban công kiểu Pháp và hệ thống chuyển đổi cửa sổ, cho phép tránh khỏi sự đơn điệu của các khối nhà;
- Màu sắc – giải pháp dùng màu sơn ngoài táo bạo đầu tiên cho khu dân cư trong cả nước.
Các tầng khác nhau của những tòa nhà liền kề (cao từ 2 đến 16 tầng) tạo thành hình ảnh đẹp như tranh vẽ trên mọi con phố
Những ngôi nhà có mặt tiền phẳng và cửa sổ rộng, được chấm phá bằng không gian xanh xung quanh với lối đi dành cho người đi bộ, sân chơi và sân trong bên dưới… tất cả đều cách biệt với những con phố buôn bán. Không chỉ các khối nhà ở, Comfort Town cũng bao gồm thêm: Một Học viện Giáo dục hiện đại; một trung tâm mua sắm; sân thể thao ngoài trời; quán cà phê; khu phức hợp bán lẻ rộng 4500 mét vuông; khu văn phòng và trung tâm thể dục rộng 4.600 mét vuông với ba hồ bơi và phòng tập dành cho người dân địa phương cũng như du khách; 22 sân chơi trẻ em và dịch vụ bảo trì riêng.


Comfort Town đã “hô biến” một vùng “lãnh thổ” công nghiệp ngày nào trở nên khang trang hơn, nhiều sức sống hơn và trở thành một môi trường sống tốt hơn, nâng tầm vị thế của toàn bộ Ukraine nói chung cũng như thủ đô Kiev nói riêng.
Xem thêm hình ảnh công trình:






















Biên dịch | Duc Anh
Nguồn: Archdaily, Elledecor
Xem thêm:
- Kiến trúc Trung Quốc những năm 1980 được vận dụng sáng tạo, độc đáo ở ngày nay
- Trường học rừng cây với đường đua xe đạp vô cực tại Pune, Ấn Độ
- Kiến trúc bản địa: Từ tính bản năng đến sự bền vững theo thời gian




































