Khoảng hiên với bàn trà, hồ cá, hệ mái với thanh nan khi có ánh mặt trời mang đến hiệu ứng vạt nắng đẹp mắt; nội thất điểm tô phong cách Scandinavia bằng chút Vintage tạo cho TThouse nhiều không gian để “phiêu” chiều lòng gia chủ.

Thông tin dự án:
- Tên dự án: TThouse
- Văn Phòng: 349Design
- KTS chủ trì: Lê Đức Hòa
- Diện tích: 300m2
- Năm hoàn thành: 2020
- Ảnh: Wuyhoang
- Địa điểm: Ngõ 06 – Miêu Nha – Hà Nội
Thuyết minh bởi KTS:

TThouse tọa lạc ở ngõ 06 trong làng Miêu Nha, thành phố Hà Nội. Chủ nhân ngôi nhà là cặp vợ chồng trẻ đã có 1 bé trai và sống cùng thế hệ ông bà. Gia chủ muốn có một không gian sống thật thoáng đãng, hướng mở và đủ ánh sáng tự nhiên, gần gũi, ấm áp và làm sao để 3 thế hệ vẫn sử dụng được.
Chúng tôi gặp vợ chồng chủ nhà vào thời điểm họ đã có sẵn trong tay một bộ bản vẽ từ một người bạn của chồng. Hai vợ chồng khách hàng mong muốn KTS triển khai tiếp thiết kế nội thất đó nhưng sau khi xem lại bản vẽ cũ thì nó gần như không sử dụng được. Về bố trí công năng, bản vẽ này khá tù túng; còn về phân chia không gian, dù kích thước khu đất là 7,2m không quá lớn nhưng đơn vị thiết kế cũ lại tách đôi lưới cột và ngăn chia tường từng khu, khiến không gian trở nên vụn vặt.
Do vậy, 349Design đã đề xuất bỏ thiết kế cũ để làm lại phương án mới hoàn toàn. Sau khi xem lại điều kiện khu đất, dựa trên nhu cầu thực tế sử dụng, chúng tôi đã lên phương án vượt nhịp lưới cột 7m2. Nhờ vậy không gian thoáng, mở và không hề bị tách biệt bởi lưới cột hay mảng tường nào cả.
Mặt cắt công trình
Bên ngoài công trình mang đặc trưng hiện đại, tối giản với thiết kế vuông thành sắc cạnh. Để bảo vệ mặt tiền và tạo điểm nhấn cho nhà, chúng tôi tạo thêm những mái che bằng khung thép kết hợp lam nhôm, ốp thêm hệ nhôm giả gỗ thanh lịch và có độ bền cao. Ngoài ra còn ứng dụng thêm vật liệu thép và màu sơn sáng cho phần mặt tiền.

Trước lối vào là sảnh trước với khoảng hiên nhà uống trà, nơi gia chủ có thể ngồi thư giãn và ngắm hồ cá koi bên cạnh. Phía trên có hệ mái thép kết hợp nan nhôm, khi có nắng mang đến hiệu ứng vạt nắng đẹp mắt.


Nội thất trong nhà có chút phá cách – kết hợp chất mộc mạc gần gũi với hiện đại, điểm tô phong cách Scandinavian bằng chút Vintage để tạo nên tổng thể không gian yên bình và ấm áp. Đúng như mong muốn của gia chủ: muốn trong TThouse có thật nhiều không gian để chill hay chụp ảnh check in sống ảo.

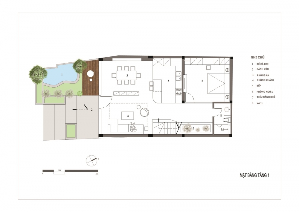
Tầng 1 được bố trí 1 phòng ngủ cho bà nội, nên tông màu với gam trung tính hơi hướng trầm, mộc mạc cho người lớn tuổi.


Điểm nhấn chính ở không gian tầng 1 là hệ vách bê tông cốt sợi thủy tinh được ốp kín từ chân phòng khách lên hết khoảng thông tầng kiêm cầu thang tầng 1.


Khu thang thay vì dùng hệ lan can truyền thống thì thay vào đó là hệ cáp treo cứng từ tầng 1 xuyên lên tầng 3.

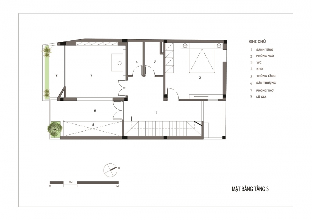
Lên tầng 2, điểm nhấn ấn tượng tiếp theo là phòng ngủ master hướng ra khu vực thông tầng ở trên phòng khách. “Hệ vách nan gỗ lùa di động và rèm vải kết hợp tạo cảm giác như đang được ở khu resort nghỉ dưỡng chứ không hẳn là ở nhà” – trích lời chủ nhà



Không gian vệ sinh được khéo léo điểm 1 ô cửa kính tròn làm điểm nhấn để khi sử dụng vẫn có thể ngắm nhìn không gian phía ngoài phòng.


Về vật liệu chính sử dụng trong công trình chủ yếu là gỗ công nghiệp MDF An cường kết hợp sơn bệt inchem cao cấp, kết hợp sàn gạch vân terrazzo trắng pha họa tiết sắc màu vừa lạ mắt lại sinh động.
Xem thêm ảnh công trình:


































































XEM THÊM:
- LK 27 – Nét hiện đại bên bờ biển Vân Đồn | 349Design
- LA House – Nhà ống 2 tầng rưỡi | 349Design
- 349 Design: Nội thất biệt thự




































