Elora House là ngôi nhà của một gia đình 4 người, toạ lạc tại phía Bắc thành phố Bekasi (Indonesia). Văn phòng kiến trúc Atelier Bertiga đã dành tâm huyết để sáng tạo ngôi nhà thật độc đáo, khác biệt với những ngôi nhà lân cận đồng thời cho phép không khí lưu thông và hạn chế năng lượng nóng nực từ mặt trời.

Thông tin công trình
- Tên công trình: Elora House
- Vị trí: Thành phố Bekasi, Indonesia
- Đơn vị thiết kế: Atelier Bertiga
- KTS trưởng: Mahadiyanto
- Tổng diện tích xây dựng: 165 m2
- Năm: 2020

Elora House được xây dựng trên một khu đất nghiêng rộng 130 m2. Công trình bao gồm 2 khối: khối thứ nhất che chắn ở hướng Tây nhằm hạn chế sức nóng từ mặt trời, khối còn lại ở hướng Đông Nam. Theo đơn vị thiết kế Atelier Kertiga, mục đích của việc phân khối như vậy là để tách biệt khu vực sinh hoạt chính (ở hướng Tây) với khu vực vườn cây và dịch vụ, đồng thời có thể tối đa hóa diện tích đất.

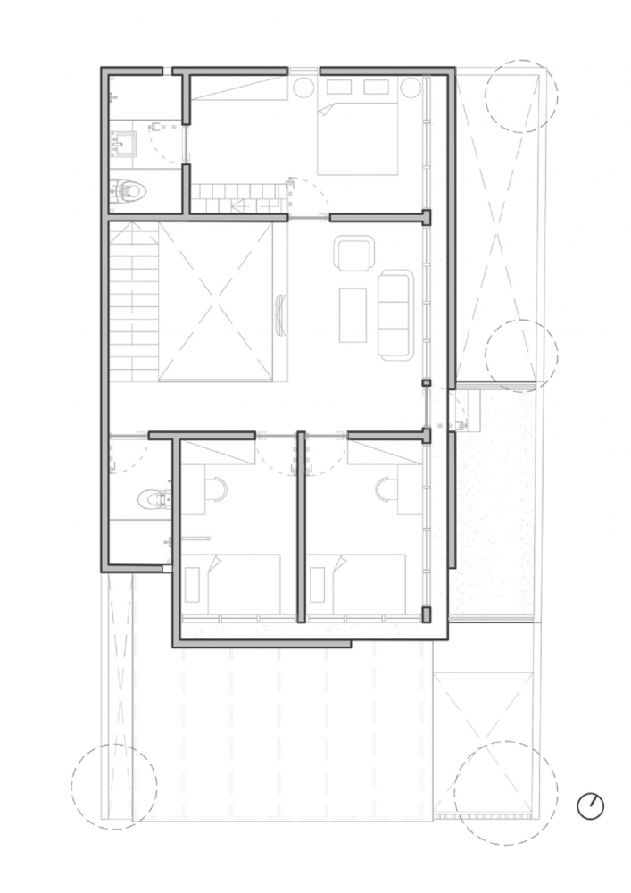
Với thiết kế kể trên, khu vực sinh hoạt chính có được nhiều ánh sáng tự nhiên. Không chỉ vậy, một giếng trời cũng được thiết kế để lấy ánh sáng từ mái. Sẽ không phải lo lắng về việc ngôi nhà quá nhiều ánh nắng bởi giếng trời được trổ bên trên cầu thang phía Tây và chỉ đón nắng vào vị trí này mà thôi.
Ở hướng Đông, để hạn chế sức nóng vào ban ngày, KTS đã bố trí vật liệu gạch xây rỗng bao quanh mặt tiền. Hệ thống gạch này cũng giúp lưu thông không khí tự nhiên vào nhà.

Bên trong Elora House, bằng cách sử dụng “hiệu ứng ống khói”, KTS đã cho phép luồng không khí tự nhiên đi vào nhà và chuyển tiếp qua khoảng trống ở giữa, không khí nóng sẽ thoát ra qua khe tường trên mái nhà để duy trì nhiệt độ trong phòng luôn ở trạng thái mát mẻ. Tính theo chiều dọc, khoảng trống ở giữa ngôi sẽ giúp đón gió và gia tăng ánh sáng, ngoài ra còn có thể giúp gia chủ cải tạo thành không gian sử dụng trong tương lai, có thể bố trí thành một gác lửng trong phòng ngủ chính – nơi có chức năng như một phòng làm việc.

Quy tắc “3 tông màu” trong kiến trúc cũng được áp dụng cho Elora House. KTS đã sử dụng các màu sắc tự nhiên như xám đậm, đất nung và trắng. Màu xám đậm chiếm ưu thế ngoài mặt tiền của tầng hai ngôi nhà, thể hiện sự cứng rắn, mạnh mẽ và có thể giữ cho ngôi nhà có được diện mạo sạch sẽ, hạn chế việc phải vệ sinh hay bảo trì nhiều (ngôi nhà nằm gần khu công nghiệp).
Những viên gạch màu xám đậm được bố trí khéo léo tại mặt tiền chính, kéo từ trên xuống dưới theo bố cục từ đặc đến so le, từ chóp nhọn cứng rắn đến hình vòm mềm mại, tạo cho ngôi nhà mặt tiền độc đáo, thu hút.

Ở tầng 1, màu đất nung sáng hơn được sử dụng rất khéo léo. KTS vẫn sử dụng cách sắp xếp các viên gạch so le, đục lỗ để đảm bảo cùng một ngôn ngữ kiến trúc. Trong khi đó, màu trắng được áp dụng triệt để hơn bên trong nội thất để tạo ấn tượng tươi sáng và tự nhiên đúng tính chất của một gia đình.

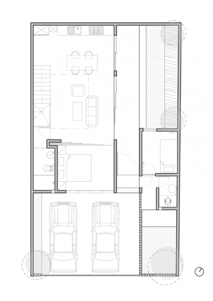
Vị trí của các không gian cốt lõi như phòng khách, phòng ăn và nhà bếp được đặt trên cùng một hàng tại tầng một để tạo điều kiện thuận lợi cho các hoạt động kết nối. Ngoài ra, 3 phòng này còn được chủ ý tiếp xúc với một khu vườn rợp bóng dây leo, gần gũi với thiên nhiên và mang đến sự ấm áp.


Xem thêm hình ảnh công trình:



















Biên dịch | H.N (Nguồn: Designboom)
XEM THÊM
- Treetop House – Kiến trúc “bay” trên những ngọn cây | Joao Marques Franco
- Interlude House – “Ốc đảo” thiên nhiên giữa đô thị | Ayutt and Associates design
- “Mái nhà cổ tích” tọa lạc giữa rừng Nhật Bản | Klein Dytham Architecture




































